Compatible Doors for Smart Lock
The BABA-8300 smart door lock is a high-tech security solution designed for both residential and commercial use. To ensure optimal performance and a secure installation, it is essential that your door meets the necessary specifications. Below, you’ll find detailed information on the door requirements and recommendations for installing the BABA-8300.




Door Thickness & Material
The BABA-8300 smart lock is compatible with doors that have a thickness ranging from 35mm to 100mm. This makes it suitable for a variety of door types, including:
✔ Wooden doors – Solid or engineered wood doors commonly used in homes and offices.
✔ Metal doors – Steel or aluminum doors typically found in commercial buildings and apartments.
✔ Security doors – Doors reinforced with metal plates or additional security layers.
It is not recommended to install the lock on glass doors or frameless doors without a reinforced structure, as proper fitting may not be possible.
Required Door Structure
To install the BABA-8300, the door must have enough space for the lock’s body and its electronic components. Key structural requirements include:
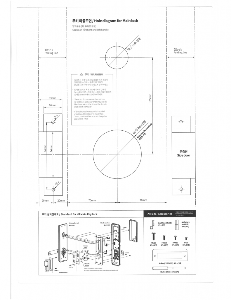
- A minimum space of 135mm from the edge of the door to the lock hole center.
- A 32-40mm hole diameter for the spindle.
- A 68-70mm hole diameter for the main lock mechanism.
- If your door has a metallic cover, ensure that the thickness does not exceed 7mm, or use a spacer to adjust the fitting.
Tip: If your door has an external decorative frame, make sure it does not interfere with the fingerprint reader or keypad.
Lock Alignment & Installation Considerations
Proper alignment is critical for ensuring smooth functionality. When installing the lock, take note of the following:
✔ Ensure the lock is level – Misalignment can cause difficulties when locking/unlocking.
✔ Use the provided hole template – The installation guide includes a drilling diagram to ensure accuracy.
✔ Check the striker plate – The gap between the installed mortise and the striker should not exceed 7mm.
Warning: If your door has an uneven surface or a door cover, the fit may not be perfect. Always verify the side alignment before drilling.
Included Installation Accessories
The BABA-8300 comes with all necessary components for a standard installation, including:
✔ Shaft pin – 1 piece
✔ AA batteries – 4 pieces
✔ MSx20 screws – 4 pieces
✔ FHD screws (10mm) – 4 pieces
✔ M4x10 screws – 2 pieces
✔ M4x6 screws – 2 pieces
✔ Striker plate – 1 piece
✔ Installation guide & templates
For doors requiring additional modifications, consult a professional locksmith to ensure a secure and stable fit.
Final Recommendations
If you’re unsure whether your door meets the installation requirements, contact our support team for assistance. We can guide you through the measurement process to confirm compatibility before purchase.
Need more details? Check out our Installation Guide in the product pack for step-by-step instructions.
Secure your space with the BABA-8300 – the smart lock designed for convenience and maximum protection.

